Navigation

04.05.2010

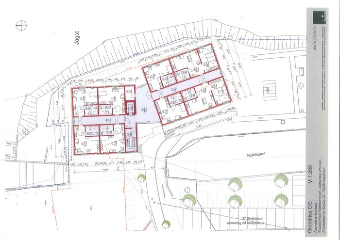
Neubau "Betreutes Wohnen"

Dieses Jahr geht es endlich los! Nach einer langen Vorlaufzeit wird im Herbst der Beginn unserer Baumaßnahme „Betreutes Wohnen“ sein.

Angefangen wird mit dem Abriß zweier Altgebäude im Oktober. Anschließend steht das Herrichten des Baugrundstückes an, insbesondere durch eine Aufschüttung um mit dem Gebäude später auf Straßenniveau und aus dem Hochwassergefährdungsbereich zu kommen. Anfang 2011 wird dann der Neubau begonnen, die Fertigstellung und der Bezug werden im ersten Halbjahr 2012 sein.

Im Gebäude werden großzügig dimensionierte Einzimmer- und Zweizimmerappartements realisiert, jeweils ausgestattet mit einem Sanitärraum und einer Küchenzeile. Im Erdgeschoß befindet sich der Eingangsbereich, dem ein Rollstuhlunterstellraum und ein Wäschewasch- und -trockenraum angeschlossen sind.

Rückfragen zum Angebot des „Betreuten Wohnen“ beantwortet gerne Norman Weyrosta (n.weyrosta@ekwz.de).

2553 Aufrufe

0 Kommentare

Es gibt noch keine Kommentare

Kommentar hinzufügen